• 91短视频版高清在线观看WWW,91短视频污下载,91短视频黄版下载,国产91短视频APP污版

    您的位置: 首頁 > 產品展示 > 91短视频污下载架/91短视频污下载櫃 > 智能自動選層櫃(回轉櫃) > 智能自動選層櫃

    智能自動選層櫃

    • 所屬分類:91短视频污下载架/91短视频污下载櫃
    • 發布日期:2021-12-8
    • 瀏覽:
    • 谘詢電話:13932860779

    詳細信息

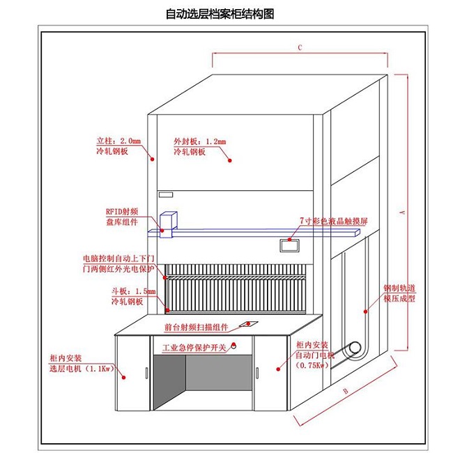
      智能自動選層櫃是一種具有查找功能的管理係統( 到個),櫃子每層分成若幹格子,每格對應一個檔案盒及一個指示燈,通過係統控製管理軟件可以查找到所需檔案所在櫃的哪一層哪一格(需查找檔案所在格的指示燈亮),具有對樓麵承載要求低,智能化程度高,很大地提高了工作效率,這是智能檔案管理的一種技術革新,也是未來發展趨勢!

     

        自動選層檔案櫃是新一代的自動化檔案存儲設備。由硬件和軟件 兩大部分組成。智能檔案櫃可廣泛用於部隊、政府、醫院、銀行、公檢法係統、金融機構、院校、圖書館、檔案館、研究所、設計所、海關、企業和事業單位等。

        檔案管理員隻需輸入需要查找的人名、編號或其實信息後確認,所需檔案自動轉送到操作出口供存取。該檔案櫃具有智能存取,數字查詢、盤庫報表和權限設置等功能。廣泛應用於幹部人事、財務綜合等各種檔案管理。存取檔案方便快捷,在設計上充分利用空間,能夠在占地麵積 小的情況下充分利用現有的空間高度,節約占地麵積。全封閉存儲檔案可以有效的避免灰塵、陽光等侵害,提供了雙鎖安全設置,防止未授權存取。支架與櫃殼一體化製成,更加堅固,承載能力強。具有保密權限功能,密碼正確方可進入存取檔案操作。存儲空間可自動進行優化。可節省檔案存取時間。操作簡單易懂,處理功能優良,可實行檔案網絡化管理,並可與中心的MRP、ERP係統進行無縫集成。係統運行過程中,計算機對自動檔案櫃的運行狀態進行實時監控,並進行必要的數據交換。檔案管理軟件可對檔案存取進行日常管理,根據檔案屬性自動或手動安排儲位,對相應的自動檔案櫃產生存取請求,根據自動檔案櫃的反饋信息作出存取確認。定期生成報表及盤點報表,滿足檔案管理需要,可條碼輸入,也可手工輸入,提供查詢。根據用戶需要,提供與ERP的數據交換接口信息,便於接入用戶的中心管理係統。


    自動選層櫃常規尺寸為W1850*D900*H2950 mm。

    智能自動選層櫃

    智能自動選層櫃

    智能自動選層櫃

      

        

        自動選層檔案櫃是新一代的自動化檔案存儲設備。由硬件和軟件兩大部分組成。智能檔案櫃可廣泛用於部隊、政府、醫院、銀行、公檢法係統、金融機構、院校、圖書館、檔案館、研究所、設計所、海關、企業和事業單位等。



    智能自動選層櫃

    智能自動選層櫃

    智能自動選層櫃

    智能自動選層櫃

    智能自動選層櫃

    智能自動選層櫃


    上一個產品:智能回轉櫃    下一個產品:底圖91短视频污下载架

    24小時服務熱線

    13932860779

    葛經理

    冀ICP備43458417號-1河北91短视频版高清在线观看WWW金屬製品有限公司   我公司為您提供:91短视频污下载櫃、91短视频污下载架、檔案櫃、電動91短视频污下载架、智能91短视频污下载架、書架、貨架、上下床、塗鴉櫃、儲物櫃、金庫門等鋼製辦公家具,品質好價格低,值得信賴!歡迎朋友們來我公司實地參觀考察! 關於新廣告法“違禁詞”用詞和相關數據來源說明:   1.本網站支持關於《新廣告法》實施的“極限化”用語“違禁詞”規定 即日起,凡是本網站頁麵以及產品標題等含極限化“違禁詞”介紹的文字說明一律立即失效,不作為當前在售商品介紹描述的依據(本網站美工已經在整改排查中)!    2.凡客戶瀏覽本網站內容均默認頁麵所有數據、功能、性能等來源由工廠“內部實驗測量得出”僅供參考,不支持任何以數據來源為借口理由投訴本網站違反“廣告法”變相勒索本網站索要賠償的違法惡意行為!    3.本詳情頁內提及的所有產品數據、功能、性能、規格參數等都是由工廠內部實驗測量得出,僅供參考,具體信息請以實物為準。

    0
    河北91短视频版高清在线观看WWW金屬製品有限公司

    微信掃一掃加好友

    網站地圖